所屬分類:振動篩系列
Product introduction
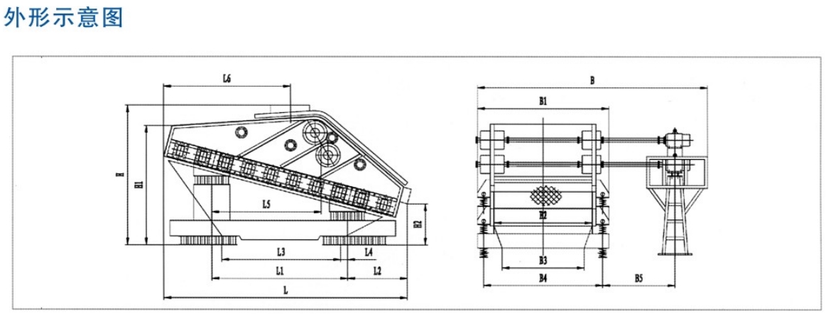
產品介紹
工作原理及產品用途
ZSL系列大型冷礦振動篩屬于雙軸直線振動篩,由兩臺電動機通過傳動軸外拖動激振器作反向自同步旋轉,使篩箱產生較大振幅的直線振動,電機不參振,這種振動篩具有生產能力大、工作可靠、振幅調節方便、傳給基礎的動負荷小等優點。已廣泛用于冶金、礦山、煤炭、港口等工業部門,主要用于溫度在150°C以下;冷燒結礦分級作業。
結構特點
該系列振動篩由篩箱、激振器、支承彈簧、隔振架、二次隔振彈簧、電動機及其支架等組成。
篩框部件由篩框、篩板及緊固裝置組成。篩框側板用整塊優質鋼板制造,側板、加強筋板和橫梁、激振器底架間的連接采用高強度螺栓與自鎖式螺母或環槽鉚釘連接,牢固可靠。
激振器一般安裝在篩框上部的兩邊側板上。制成上振式結構,激振器也可布置在篩框的上部用萬向聯軸器連接,激振器采用迷宮環密封,干油潤滑。該系列冷礦篩篩板采用耐磨合金鋼或不銹鋼篩板,具有不變形,壽命長的特點。
使用與維護
1.篩機應避免帶料啟動,使用前清理篩機周圍及機上雜物。
2.在篩子工作過程中,如發現運轉不平穩,有異常聲音或其他不正常的狀況時,應立即停車檢查。3.經常檢查螺栓連接情況,若有松動立即擰緊。
4.振源的調整、使用和維護,請參照振源使用說明書。
安裝與調試
1.安裝前,要把現場基礎與篩子安裝圖對照檢查,預埋鋼板的平面度誤差≤3mm.
2安裝前,根據篩子從下到上的順序進行安裝,每一個環節都調整到初步合格的狀態之后,再進行下一環節的安裝。
3.篩子安裝完畢,調整好相對位置,一次與二次減振彈簧均呈垂直狀態,電動機軸線應低于激振器軸線3-5mm ,再把電機支架、彈簧底座與預埋鋼板焊接焊牢。
4.要求兩臺電機轉向必須相反,激振器偏心塊處于同一相位。
5.振動篩空載運行4-6小時,要求篩體運行平穩,無搖擺與異常響聲,檢查篩板、激振器的緊固狀況。




Customer case
客戶案例
Relevant news
相關新聞
-
08-17
積極維護防汛救災網絡秩序倡議書近期,東北、華北、黃淮等地出現極端降雨,多地出現居民被困和人員傷亡情況,全國各地救援力量迅速集結,全力投入防汛救災工作。在當前全國齊心聚力、攜手救災的特殊時期,... -
11-20
振動篩的大好場景!國內的振動篩行業可謂是風生水起,行業內一派火熱景象。別的不說,就拿行業消息來講:鞍重股份高性能大型振動篩入圍國家科技技術發明獎;中聯重科首臺4GLS2530...
-
11-20
振動篩為什么能取代搖動篩?振動篩在行業初期也遇到過很多強有力的競爭對手,就像搖動篩,也風靡一時。今天,我們帶你一起探討一下,振動篩為什么取代搖動篩? 搖動篩是以曲柄連桿機構作為傳動...
