所屬分類:振動篩系列
Product introduction
產品介紹
產品簡介
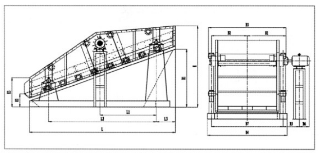
JYA(K)型圓振動篩運動軌跡為圓,主要用于冶金選礦、選煤、建材、電力等行業干式物料的分級作業。該系列圓振篩采用目前國內先進的環槽鉚釘鉚接新工藝。大游隙軸承脂潤滑振動器,具有結構簡單,堅固耐用,噪聲低、安裝、維修方便等優點。

工作原理及結構特點
JYA(K)型圓振篩是利用普通電機外拖動振動器,使篩體沿激振力方向作周期性往復振動,物料進入篩體后,受力向出料端運動,從而達到篩分目的。
JYA(K)型圓振篩由振動源、篩體、篩網、減振裝置和底托組成,篩機側板采用優質鋼板制作而成,側板與橫梁、激振器底座采用高強度螺栓或環槽鉚釘連接,結構合理,堅固耐用。
外形示意圖

安裝與調試
1.安裝前應參照安裝圖制作混凝土基礎,預埋地腳螺栓或預埋鋼板平面度誤差≤3mm,。
2.安裝完畢,檢查調整各組彈簧,每個支撐位置受力均勻,電動機軸線應低于激振器軸線3-5mm,對稱點支撐彈簧應水平等高(誤差≤3mm)。
3.篩機各部位應牢固連接,所有螺栓開機前應緊固一次。
4.調整激振器的偏心塊夾角,可以調整激振力,從而調整篩機振幅。5.與其他相鄰物之間的距離不小于100mm。
使用與維護
1.篩機啟動前,應檢查各緊固件螺栓有無松動,如有松動應緊固。
⒉.篩機空載運行4-6小時,要求篩體振動平穩,無橫擺及異常聲音,激振器軸承溫度≤75℃。3.空轉運行后,應將各部位螺栓重新緊固。
4.正常運轉后,定期檢查各緊固件螺栓緊固狀況。
5.經常檢查易損件,對已損壞或失去彈性的減震彈簧要及時更換。篩網發生松裂或磨損,應及時緊固或更換。
6.振源的調整、使用和維護,請參照振源使用說明書。(振動電機使用3個月后加油一次,激振器每月加油一次,半年小修一次,一年大修一次)。
7.停車前應先停止給料,待篩面物料篩分完后再停車。


Customer case
客戶案例
Relevant news
相關新聞
-
08-17
積極維護防汛救災網絡秩序倡議書近期,東北、華北、黃淮等地出現極端降雨,多地出現居民被困和人員傷亡情況,全國各地救援力量迅速集結,全力投入防汛救災工作。在當前全國齊心聚力、攜手救災的特殊時期,... -
11-20
振動篩的大好場景!國內的振動篩行業可謂是風生水起,行業內一派火熱景象。別的不說,就拿行業消息來講:鞍重股份高性能大型振動篩入圍國家科技技術發明獎;中聯重科首臺4GLS2530...
-
11-20
振動篩為什么能取代搖動篩?振動篩在行業初期也遇到過很多強有力的競爭對手,就像搖動篩,也風靡一時。今天,我們帶你一起探討一下,振動篩為什么取代搖動篩? 搖動篩是以曲柄連桿機構作為傳動...
